lunes, 17 de enero de 2011
Broken House / KWK PROMES
7:19 p. m.





















Architects: KWK PROMES
Location: Katowice, Poland
Project Architect: Robert Konieczny, Marlena Wolnik
Structural Engineer: Jaroslaw Kaminski
Design Year: 2000
...Construction Year: 2001-2002
Site Area: 3,500 sqm
Constructed Area: 330 sqm
Photographs: KWK PROMES
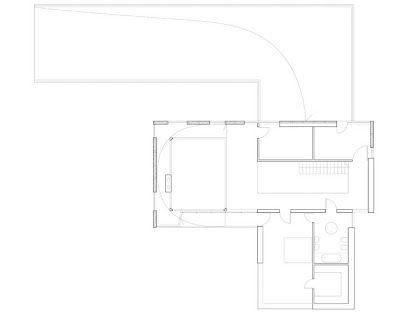
The building is located on the outskirts of Katowice, near a forest, on land deteriorated by 4th category mining damage, where tectonic faults are a possibility. Hence the connotation of uplifted layers of soil, interwoven with one another, ... which was the inspiration for the form of the house.
Its structural design comprises rectangular solids contrasting with the ribbon – like structure which winds around them after it emerges from the ground. It is the leitmotif of the building, combining a variety of functions: starting with the swimming pool to the living room with a fireplace and then to the bedroom upstairs. A noteworthy feature of the ramp is elimination of stoops. Such a solution was achieved by bending the surface of the course, which made it possible to keep its outer edges straight, without bends typical for such structures.
Suscribirse a:
Enviar comentarios (Atom)
Archivo Articulos
Categorias
- conversaciones (3)
- nosotros (1)
- territorio y paisaje (1)
- We lOve to bUild (186)
0 comentarios:
Publicar un comentario